|
|
|
|
|
餐飲設計 |
|
|
|
| |
下面談一下個人對于餐飲的設計及理解:(馬沈青2013年4月18日隨筆) |
|
| 個人做過的餐飲類很多,包括西餐、中餐、湘菜、川菜、火鍋、酒樓茶樓、大排檔、快餐類,有星級的也有普通的;但對于餐飲業,我只知道最重要的客源、服務、上菜的速度、食物的特色性和宣傳;很多人都認為設計與這些沒有直接關系,但成功餐飲的老板,卻很重視設計,因為找設計就是為了以后的經營;也就是說設計好壞與成敗是有直接關系的;老實說設計師并不會經營,經營好環永遠只看老板自己,另外設計師都是窮人,正因為這樣,所以沒有老板會在意設計師的話,特別是新入行的老板;但設計師做多了,接觸的餐飲行內的老板多了,對于行內的經營和管理都有不少了解,反過來行內成功的老板,開新店都會重視設計,甚至都會花大錢去找設計師,除此他們都會向設計師,傳達他們的需求,畢竟裝修是大頭,設計合不合理,也是以后經營管理的關鍵;雖然設計師不會去幫忙端盆子,但設計卻可以讓你端盆子,更簡單或更難;一個服務生可以完全勝任的工作,讓兩個服務生忙到手忙腳亂,這些你同意對吧;沒做過商業設計,和不參與管理的老板,是不在意這些的;但可能你會說,好像這些是設計經驗問題,一般設計都會;是不是都會,我就和你吵了;但我在這告訴您,關于客源、服務態度、特色性和宣傳后期管理、安全、是否營利;與設計脫不了直接關系,而設計是否可以滿足這些,主要關系卻是老板,因為設計是為老板服務的,會因為老板而改變; |
| 下面找個個人失敗的設計的例子,我說一下設計與這些的關系; |
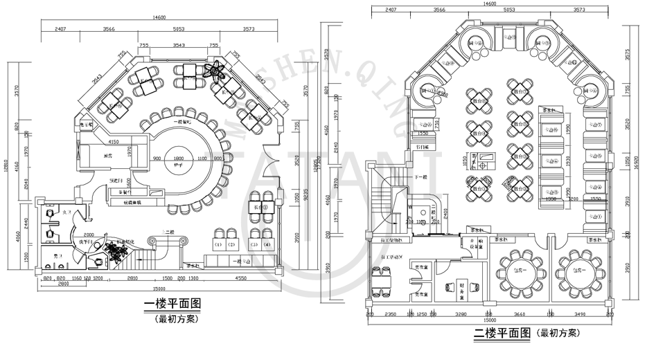
| 某地級縣的特色餐飲:地址在多家KTV附近,人流可以說很多,下午7點量完房,半夜十二點,就說第二天早上就要看設計,我下午才給到平面圖給他們;下面是原平面圖,樓梯為角鐵木板結構;八角窗左后斜窗正對某客當時流最好的KTV,左上窗正對另一家大型KTV,前方為主干道,左上方停車也方便,車位多,位置相當好;不過租金也相當貴; |
 |
| 為什么說設計與客源有著很大的關系,關于大門,左上窗正對另一家大型KTV,也是多家KTV的必經之路,地方非常開寬,本來我是以這為門口的,在風水上位置不算很好,個人主張明堂及財路重于方位,因為方位是可以用陣法處理的,但尊重對方風水師,馬上改了,客源:大家都知道,我們都要吃飯,對于餐館,只要有人在吃飯、或者人多我們都就會進去,所以在一樓我三個主要的窗上設置了五組餐椅,另一邊也有幾組,但只要有一組坐上,就會讓人產生熱鬧的感覺,活招牌(宣傳):還曾打趣和老板他們說,到時多叫些美女來下面吃飯,但最少留兩三桌空桌,而美女可以引來很多客人,吧臺兼酒吧水吧功能,可以撿不少酒客;其他客人則由服務員引上二樓,因為從地理的角度上,我把方主要客源定義為,年輕男女,而吃飯的人既要熱鬧,又不想別人干擾,這么說不過分吧;二樓設計視覺上封閉的卡座,是源于我設計半島餐廳時的心得,給情侶狂歌后,或中途‘私奔’的者一個私密就餐的空間,因為狂歌者下一步的節目正經是‘宵夜’;真的人多了,中間開放區餐桌就沒人介意了;因為是當地沒有的特色菜,我設計兩個包房,主要是給特意來嘗鮮的有錢人,當地這些有地位的人,很少會坐大廳上;二樓設置吧臺,只要是方便管理二層、收銀、酒水,員工區主要是給員工休息、換衣、上廁所、發工資、聘請時不影響到客人,釣網商水論中說到,收銀臺,是個只進不出的地方,除了找錢和退錢,發工資沒有人會在這里發;這與開市不放過第一單生意,早上不給錢;賭錢、贏錢不借錢,這些是民間關于錢的習俗;廚房上面還有個夾層,初始方案的不足,在于傳菜只能上到夾層,但一桌只要一次盆,并非很多盆,上菜速度并不會打很大的折扣,只是二樓加了十幾級梯子,考慮到餐桌子位置的重要性,我沒理會這個;也沒想過外觀可以加建;人員和服務:一、二樓人員分區只要1到兩個服務員;由于有通信設置,服務員可以兼取餐;收銀及酒水一二樓各一名,多了點但兼了工作,但因為第一次設計用到這爐子,沒看到東西,只是通過描述是有所不足,但個人也認為并沒大的問題;看不到內部員工的私人生活,看不到進入菜品垃圾處理;那個大爐子放到最顯眼的中間就是體現它獨有特色; |
 |
| 但最終方案:完全以城市連鎖店的作為主要參考,并增添了老板自己的意思,還他風水師的意見(門的尺寸,用廣州尺,后面不可以開門等,風水上在某些情況下是不好,但餐飲風水上沒后門是不行的;因為屏風是“爐子和吧臺”,大進小出本是正常的;最終垃圾菜品貨都是由前面進前門出,剩菜另設了通道;),及老板在各國的見識;我馬上成了土包子,談風水論釣網,他又有自己的風水師,因為租金高,時間又緊我只能將就他們,從他的角度上去設計,二樓他取消的屏風,和包房、也不給充電插座,老板的理由是多人在一起才熱鬧,沒有插座,人才不會賴在這里,學設計時老師也提到過這一點,客賴著是會少用很多生意;所以我只針對快餐業用過這個,而且還是用在桌子上,但效果并不好;但用經營者的角度,廚師請來的五六個小工、甚到剛來的學徒,都給到5000以上工資,(5000是我做設計十年以后才拿到的底工資),服務員也3000以上,我沒再說話,也許他是對的,可能我是落伍了;除此之外還取消的門口的雨蓬,外觀設計也完全沒理會我的意見,交給了他親戚做廣告的,意思是可以讓他掙點錢;這一點以前在大公司做小弟,要辭職的時候,香港老大曾對我說過:“你要記住,設計的成功與否,不在于你的能力,而是在于設計的收費,如果你的設計費,在對方心目中不算錢,或者你不要錢,你的設計,永遠不會得到認可和實施,還有你的建議永遠不會得到重視,包括你的人;”這一點這么多年以來我深深得到體會;下面是一樓最后的設計, |
 |
| 下面是二樓的最終方案,但最后還取消了卡座和屏風;全是純開放式餐臺,但這類的成功案例是大型超市;最終經營時間,最后改為:17:30-02:00;因為主流的客人,就是出來唱K的,出來玩的,出來泡妞的,在KTV里吵了一夜,更喜歡靜一點的地方;更希望有個私密點的空間,但沒有人給他們提供這個,而這里也沒有半島類的餐館; |
 |
| 這個餐館最終沒支持下去,這成了我又一失敗的作品,總結這次設計失敗的原因:除了租金高、人工高、再有是設計不合客人需求,更重要的是,老板是個少有的好人,說心理話好人世上不少了,包括我雖然不做壞事,但我對自己的評價,也是個壞人; |
| |
|
|
|
|
|
|
|
|
|
| |
|
上一頁: 酒 店 |
|
下一頁: 酒巴KTV |
|
|
|
|
|
|
|
|
|
|
 |
| 設計及施工重點針對廣東茂名地區,并少數項目現與全國各地區公司及個人展開合作; |
|
|
|
|
|